Projects
About us
Contact
Projects
About us
Contact
Interior 3d visualization

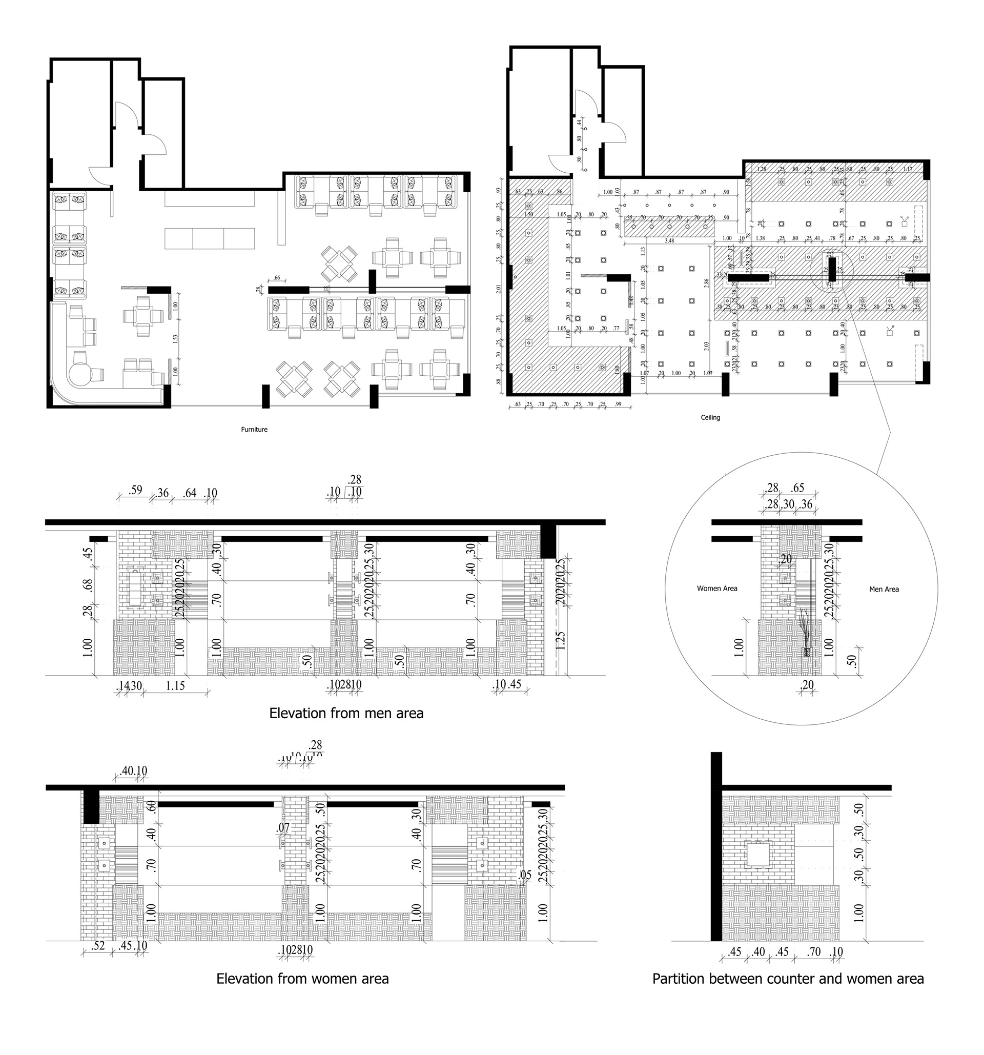
D.Cappuccino Café

Cairo | 2012

You may also like

17 Oceanfront Dr Shell Cove - Attic Lounge
2025
17 Oceanfront Dr Shell Cove - First Floor Dining
2025
17 Oceanfront Dr Shell Cove - Bedroom 5
2025
Al-Aseel Sanitaryware Store
2014
17 Oceanfront Dr Shell Cove - Pool Area
2025
Dr. Ossama AL Qahtany Private Villa
2023
17 Oceanfront Dr Shell Cove - Entrance Lobby
2025
MADAR
2023
GACA Headquarters
2023
Modern Apartment
2023
↑Back to Top
Disclaimer: This is not an Australian Architecture Practice. This is a design portfolio.